Eigentumswohnung in FrankfurtBornheim mit Poolbenutzung |
Erster Artikel endet um: 13.03.2026 - 13:00:00
Eigentumswohnung in Frankfurt/Bornheim mit Poolbenutzung
Restzeit
24T 13h:52m:30s
(Freitag, 13. März 2026 um 13:00:00)
Startpreis
244.000,00 EUR 0 Gebote
Versandkosten
Kostenlose Abholung
Kein Versand Inland
Kein Versand EU
Kein Internationaler Versand
Artikelstandort
Deutschland, 60389
Beschreibung
Etagenwohnung im 13. Obergeschoss.
Ausstattung
Aufzug vorhanden
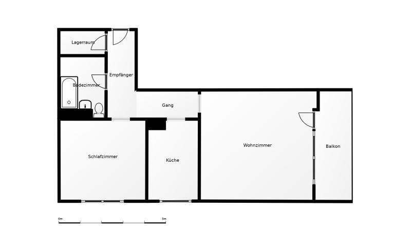
Wohnfläche: ca. 60 m²
Zimmer: 2 Zimmer
Küche: Kleine Küchenzeile möglich; Anschlussmöglichkeiten vorhanden
Bad: mit Wanne; Potenzial für individuelle Gestaltung
Böden: Teppichboden in Küche/Bad/Flur und Wohnzimmer; nachträglich eingebaute Podeste(Holz) in Küche und Schlafzimmer
Fenster: Doppeltverglaste Fenster; gute Lichtverhältnisse.
Heizung: Zentralheizung.
Balkon: Vorhanden, einmalige Aussicht auf Frankfurt und Umland
Keller/Abstellraum: Im Gebäude vorhanden, ein Abstellraum in der Wohnung vorhanden
Raumaufteilung
Wohnzimmer: Großzügiger Raum mit Zugang zum Balkon
Schlafzimmer: Ruhig gelegen, ausreichend Platz für Doppelbett und Kleiderschrank
Küche: Funktional, Platz für Einbaugeräte
Bad: Bad mit Badewanne; Anschlussmöglichkeiten für Waschmaschine
Einzugstermin flexibel
Sehr gute Verkehrsanbindung (Bus/Tram/S-Bahn in der Nähe)
Einkaufsmöglichkeiten, Ärzte, Schulen in fußläufiger Entfernung
Sehr gute Gelegenheit für Selbstnutzer oder als Kapitalanlage
Ausstattung
Aufzug vorhanden
Wohnfläche: ca. 60 m²
Zimmer: 2 Zimmer
Küche: Kleine Küchenzeile möglich; Anschlussmöglichkeiten vorhanden
Bad: mit Wanne; Potenzial für individuelle Gestaltung
Böden: Teppichboden in Küche/Bad/Flur und Wohnzimmer; nachträglich eingebaute Podeste(Holz) in Küche und Schlafzimmer
Fenster: Doppeltverglaste Fenster; gute Lichtverhältnisse.
Heizung: Zentralheizung.
Balkon: Vorhanden, einmalige Aussicht auf Frankfurt und Umland
Keller/Abstellraum: Im Gebäude vorhanden, ein Abstellraum in der Wohnung vorhanden
Raumaufteilung
Wohnzimmer: Großzügiger Raum mit Zugang zum Balkon
Schlafzimmer: Ruhig gelegen, ausreichend Platz für Doppelbett und Kleiderschrank
Küche: Funktional, Platz für Einbaugeräte
Bad: Bad mit Badewanne; Anschlussmöglichkeiten für Waschmaschine
Einzugstermin flexibel
Sehr gute Verkehrsanbindung (Bus/Tram/S-Bahn in der Nähe)
Einkaufsmöglichkeiten, Ärzte, Schulen in fußläufiger Entfernung
Sehr gute Gelegenheit für Selbstnutzer oder als Kapitalanlage
Versand & Zahlung
Versandkosten
Kostenlose Abholung
Kein Versand Inland
Kein Versand EU
Kein Internationaler Versand
Zahlungsmethoden
Nach Genehmigung durch Verkäufer und geschlossenem Notarvertrag
Standort
Ca. Standort: Deutschland, 60389
QR-Code
Scannen Sie den QR-Code und gelangen Sie so direkt zum Artikel!
Dieser Eintrag wurde 5 mal aufgerufen.